Yerin adı: Antalya, Kaleiçi’nde Yivli Minare Camii karşısında bulunan yapı, Selçuklu Medresesi, Ulu Camii Medresesi isimleri ile de yayınlanmıştır.
Yapım Tarihi: 13. yüzyıl ilk yarısı.
Kitabe: Taçkapının basık kemerli girişi üzerinde, dikdörtgen mermer üzerine, Selçuklu sülüs hattı ile Arapça yazılmış, dört satırlık kitabe bulunmaktadır. Fakat kitabenin tahrip olması, onun tam olarak okunmasına engel olmaktadır.

“Yüceliği ve iyiliğinden dolayı Allah’a hamd olsun
Bu binanın yapılmasını Sultan…
Yüce Sultan, Allah’ın……gölgesi…..devletli günlerinde
Yüce Allah’a muhtaç Emîr…”
Vakfiye: Yapıya ait vakfiye bulunamamıştır.
Kurucu :Bilinmiyor.
Sanatçı: Bilinmiyor.
Onarım Durumu: Uzun süre bakımsız kalan yapıda 1964 yılında temizlik çalışması yapılmış ve 1995 yılında Vakıflar Genel Müdürlüğü tarafından başlatılan hafriyat ve onarım çalışmaları 2002 tarihine kadar devam etmiştir. Onarım sırasında metal konstrüksiyon ve cam ile örtülen yapıya ticari bir işlev kazandırılmıştır. Onarım sırasında yapılan kazılarda ortaya çıkan buluntular gerektiği gibi değerlendirilmemesi ve yapı hakkında çözümlenemeyen bazı sorunların daha karmaşık hale gelmesi araştırmacılar eleştirilmiştir.
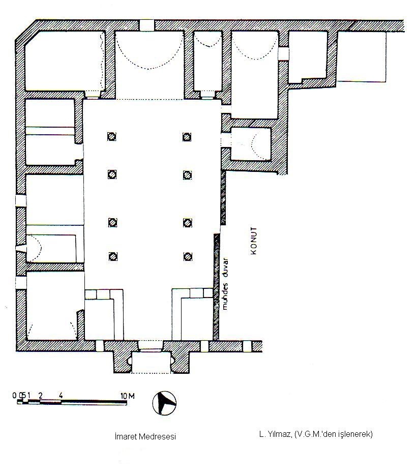
Plan: Uzun yıllar harap bir vaziyette olan yapının planını M. Sözen tarafından, 1964 yılında yapılan temizlik çalışmasında ortaya çıkan izlere dayanılarak, kuzey-güney doğrultusunda gelişen, açık avlulu, eyvanlı bir plana sahiptir. Güney cephede ana eksende yer alan dışa taşkın taçkapıdan günümüze sadece izleri kalan giriş eyvanına ulaşılır. Giriş eyvanının iki yanında girişleri kuzeye bakan iki oda yer alır. Avlu doğu ve batıda örtüsü belirlenemeyen revakla çevrelenmiştir. Avlunun güneydoğusunda kalan mekânlar tamamen yok olmuştur. Metin Sözen’in verdiği planda; güneydoğu köşede dikdörtgen bir mekânla ona kuzeyden bitişik başka bir dikdörtgen mekânın varlığı belirtilir. Yapının asıl ilginç olan tarafı kuzeybatı köşede duvarın pahlanarak sonlanması ve kuzeydoğuda bulunan mekanın doğuya bir açıklıkla açılmasıdır. M. Sözen’in planında kuzey duvarı doğu yönünde devam etmektedir. Yapıda 1995 yılında başlayan çalışmalar sonrasında ortaya çıkan son izleri dikkate alınarak verilen planda kuzeydoğu köşede yer alan mekanın bir açıklıkla dikdörtgen planlı başka bir mekana açıldığı tespit edilmiştir. Yapının farklı boyutlardaki mekanlar beşik tonozla örtülmüştür.
Yapının iç mekanına dair birçok iz yok olmuş, özellikle de son restorasyon sonrasında yapının maruz kaldığı değişim ve yapının yüklendiği yeni işlev geriye kalan izleri de yok etmiştir.
Üçboyutlu Özellik: Uzun yıllar metruk halde bulunan yapının cephelerinde görülebilen en sağlam nokta, taçkapıdır. Diğer bölümler yaklaşık 1.30 m yüksekliğe kadar ayakta kalabilmiştir. 1995 yılında başlayan ve uzun yıllar devam eden çalışmalar sırasında cepheler belirli bir yüksekliğe kadar tamamlanmıştır.
Malzeme: Yapının taçkapısında düzgün kesme taş kullanılmışken, cephelerde yontu taşlar tercih edilmiştir. Taçkapının kesme taş kaplamaları son restorasyon çalışmaları sırasınde yenilenmiş ve kapının tahrip olan üst kısmı tamamlanmıştır.
Süsleme: Günümüzdeki hali ile yapının süsleme unsuruna tesadüf edilen tek noktası taçkapısıdır. Mukarnas kavrayı çevreleyen sivri kemer alt kısımda sade denilebilecek iki sütunce tarafından desteklenir. Orijinalinde taçkapının en dışta geometrik geçme motiflerinden oluşan bordürle çevrelendiği anlaşılmaktadır. Günümüze bu bordürün küçük bir kısmı ulaşabilmiştir. Taçkapıda görülen ikinci bordür hattı taçkapı sütuncelerinin hemen bitişiğinde yer alır. Taçkapı haricinde bugün yapının duvarlarında her ne kadar görülemese de yapılan çalışmalarda bazı çini parçalara rastlanmıştır.
Tarihlendirme: Her ne kadar kitabesi günümüze ulaşmış olsa da yapının inşa tarihi kesin olarak bilinmemektedir. Bazı araştırmacılar yapının 13. yüzyılın ilk yarısında ya da yüzyılın ortalarında inşa edildiği belirtilmektedir.
Değerlendirme: Kitabesi tam olarak okunamayan yapının medrese olarak tanımlanmasında birkaç unsur etkili olmuştur. Bunlardan birisi kitabenin okunabilen “…amere bi-imaret-i haze’l bena” kısmıdır. Diğer bir unsur da Evliya Çelebi’nin yapıyı “Zarbhane Medresesi olarak adlandırması ile birlikte, banisini de Sultan Keyhüsrev ve eşi olarak belirtir. Eldeki bu veriler neticesinde yapı birçok yayında İmaret Medresesi adı altında incelenmiştir. Leyla Yılmaz, 1995 yılında başlayan restorasyon çalışması sırasında, yapının kuzeydoğu köşesinde ortaya çıkan mekan kalıntıları ve çini parçalarını, İmaret Medresesi etrafını kuşatan diğer Anadolu Selçuklu yapıları ile birlikte değerlendirmekte ve bu yapının medreseden çok I. Keykavus ve I. Keykubad zamanında asıl karakterini kazanan bir Anadolu Selçuklu Sarayı olduğunu düşünmektedir.
Kaynakça: KIRMIZI, Mete; “Yivli Minare ve Külliyesi”, Antalya 1. Selçuklu Eserleri Semineri 22-23 Mayıs 1986, Antalya Valiliği, Antalya, 1986, s. 37-47.
KURAN, Aptullah; Anadolu Medreseleri, C.I, Ankara,1969.
SÖZEN, Metin; Anadolu Medreseleri, Selçuklu ve Beylikler Devri, 2.Cilt, İstanbul, 1972.
YILMAZ, Leyla; Antalya (16.Yüzyılın Sonuna Kadar),Ankara, 2002.